Maison - Collobrières
Réf. 3839
Au cœur du village de Collobrières, découvrez cette charmante maison de village d’environ 74 m² habitables, idéale pour une résidence principale, un pied-à-terre ou un investissement locatif.
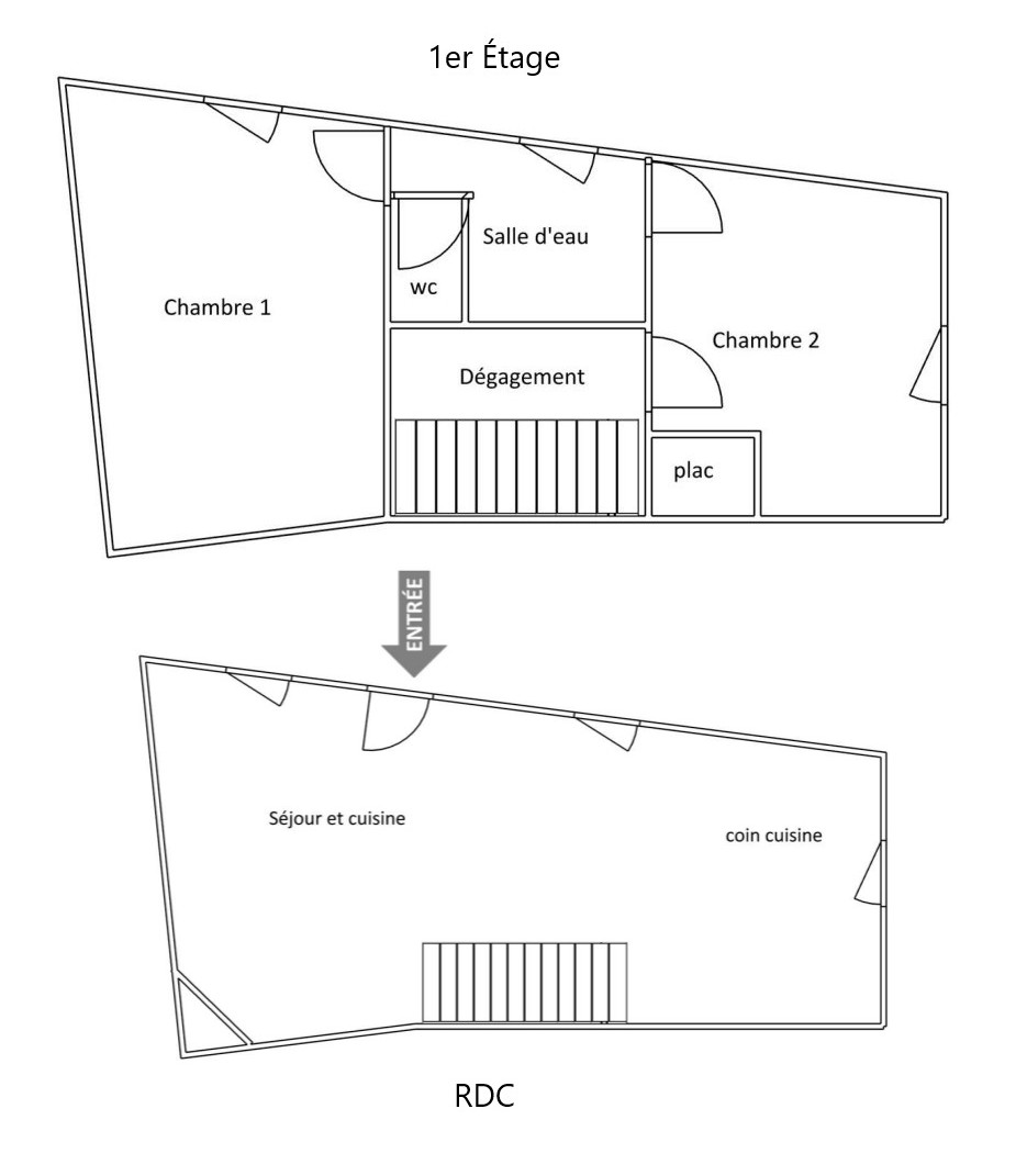
Répartie sur deux niveaux, elle se compose au rez-de-chaussée d’une agréable pièce de vie, offrant un espace convivial pour le séjour et la cuisine. À l’étage, vous trouverez deux chambres, une salle d’eau ainsi qu’un WC indépendant, offrant un agencement fonctionnel et optimisé. Sans extérieur, ce bien séduira par sa facilité d’entretien et son emplacement privilégié à proximité immédiate des commerces et commodités du village.
Une belle opportunité pour profiter du charme de Collobrières à prix accessible.
Contact : Hervé Labrux (EI423184035 RSAC TOULON). 0602440583 - h.labrux@gmail.com
Répartie sur deux niveaux, elle se compose au rez-de-chaussée d’une agréable pièce de vie, offrant un espace convivial pour le séjour et la cuisine. À l’étage, vous trouverez deux chambres, une salle d’eau ainsi qu’un WC indépendant, offrant un agencement fonctionnel et optimisé. Sans extérieur, ce bien séduira par sa facilité d’entretien et son emplacement privilégié à proximité immédiate des commerces et commodités du village.
Une belle opportunité pour profiter du charme de Collobrières à prix accessible.
Contact : Hervé Labrux (EI423184035 RSAC TOULON). 0602440583 - h.labrux@gmail.com
Les informations sur les risques auxquels ce bien est exposé sont disponibles sur le site Géorisques https://www.georisques.gouv.fr
230 000 €
honoraires charge vendeur
| CONSOMMATIONS ENERGIE POUR USAGES RECENSES ( € TTC ) | |
|
Consommation conventionnelle
kWhEP/m².an |
Estimation des émissions
kg éqCO2/m².an |
|
222.00
|
8.00
|
2, Av. Léon Blum